︎
+57 3134671172
info@alsar-atelier.com
︎
@alsar_atelier
work
-
news
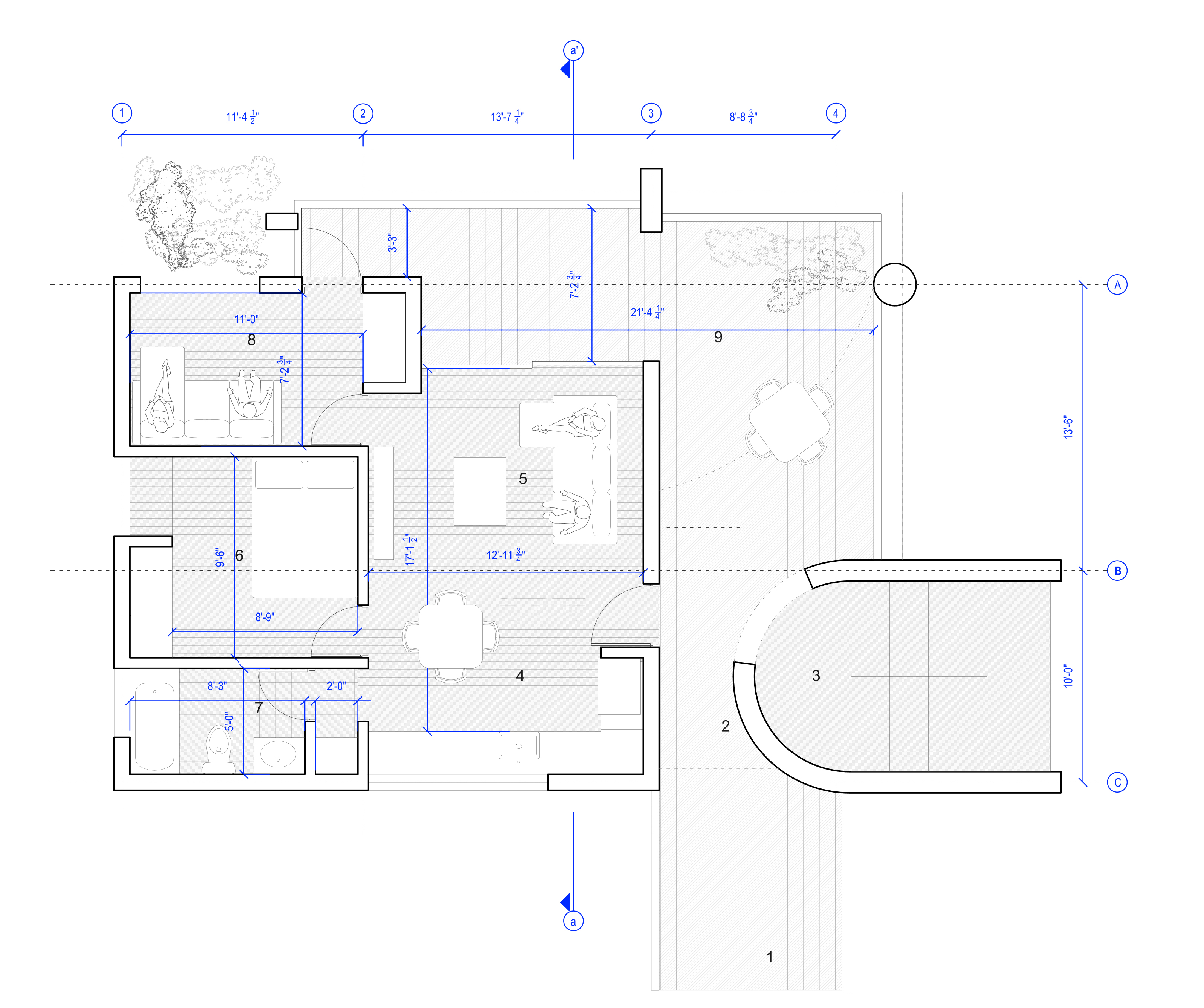
El contento Drive
Design by: Alsar Atelier
Design Consultancy for Buildoly
Construction Year: 2024
Location: Los Angeles, California
Area: 950 m
2